Your Cart

Checkout

Thank You

Thank you for helping us support artists, craftspeople, makers and designers in Aotearoa. Your order has been processed, you’ll receive an email with confirmation and order details. 

Thank you for helping us support artists, craftspeople, makers and designers in Aotearoa. Your order has been processed, you’ll receive an email with confirmation and order details. 

Announcement

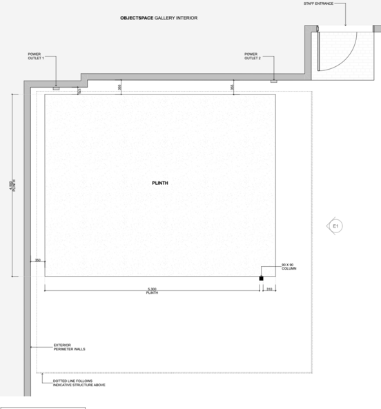
Request for Proposals for the 2024 Courtyard Plinth Commission

Objectspace welcomes proposals for new installations in our courtyard. The successful proposal will detail an innovative installation that responds to this unique site.

The Courtyard Plinth programme is supported by the Jan Warburton Charitable Trust.

The Site:

A concrete plinth defines the installation area and is visible to viewers as they enter Objectspace’s carpark and from the street front. The plinth sits under the large-scale white façade that gives Objectspace its architectural identity.

Dimensions:

A 1:20 scale plan and 3D drawings of the site are available on request from info@objectspace.org.nz.

Key dimensions are: 

- Concrete plinth: 5,300 x 4,500mm

- Elevation between plinth and façade: 2,800mm

Considerations

Given its position outside the building and exposure to the elements, there is a series of pragmatic and contextual considerations to be understood by artists and designers for proposals that will be realised in this space.

-The space is designed to focus installations on top of the concrete plinth; however, we are open to projects that utilise the building walls that corner the space.

-The courtyard is a busy area. There are three carparks within the space that are used daily. Objectspace also uses the area to host events, both day and night.

-The space is lit by strip LED lighting that sits within the white cube grid façade (see images).

-The courtyard is secure and alarmed when not in use. The entrance to the courtyard is gated and locked when the gallery is not open to the public.

-The white cube overhang essentially creates a ceiling for the plinth, and this does provide some protection from the elements, however installations do need to be able to withstand wind and rain. 

-The courtyard space is fully accessible while the gallery is open. All efforts are taken to ensure visitors interact with exhibitions in the appropriate way, however there aren’t barricades around the plinth and artists need to consider a project that is robust to human interaction in this capacity.

-Works can be fixed to the concrete plinth.

-Works cannot be secured in any way to white cube façade ceiling.

-Courtyard projects are installed for approximately 12 months.

-The ownership of the artwork remains with the artist.

Budget:

Objectspace will contribute a budget of $10,000 to the commission, and the additional costs of freight and installation.

Proposal guidelines:

- Maximum of six A4 pages, presented as a single PDF

- The proposal should include:

o Outline of concept

o Working drawings / images

o Budget overview

o Practitioner biography and links to past projects, if relevant

 

Proposals will be accepted until 5pm, Monday 31 July 2023

The successful project will be installed in March 2024.

Proposals can be submitted to:

Objectspace Courtyard Plinth and façade, photograph by Sam Hartnett

Mantle Overturn by Ben Pyne, Objectspace's 2023 Courtyard Plinth Commission

Lapping at Your Door, Emma Fitts, Objectspace's 2022 Courtyard Plinth Commission

All I Want is a Face Lift, Virginia Leonard, Objectspace's 2019 Courtyard Plinth Commission

In Praise of Volcanoes, Warwick Freeman, Objectspace's inaugural Courtyard Plinth Commission in 2017